63808 Haibach, Wohngrundstück zum Kauf
Dieses Objekt ist zur Zeit leider nicht verfügbar.
Diese komfortable, moderne und schön geschnittene Wohnung über zwei Ebenen im Herzen von Obernau wartet auf ihre neuen Eigentümer!
Sie liegt im Ober- und Dachgeschoss eines äußerst gepflegten Vierfamilienhauses, das 2018 errichtet wurde. Die Wohnung ist bezugsfertig und durchdacht geschnitten.
Die Maisonette-Wohnung mit ca. 91 m² Wohnfläche wird neben dem gemütlichen Kaminofen im Wohn-Essbereich über eine Fußbodenheizung beheizt und teilt sich räumlich folgendermaßen auf:
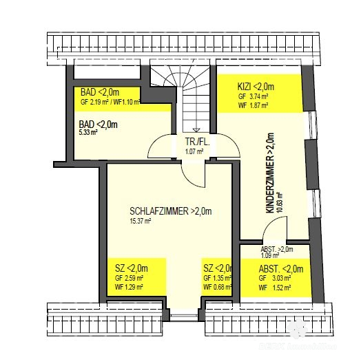
OBERGESCHOSS
DACHGESCHOSS
Die Wohnung überzeugt – neben ihrer top Lage in Obernau und direkter Mainnähe – mit einer modernen und zeitlosen Atmosphäre im "Haus-Stil".
Wie bei einem Haus ist der Wohnbereich "unten" und der Schlafbereich "oben" angesiedelt.
Der Wohn-Ess-Bereich stellt ganzjährig den Mittelpunkt Ihres neuen Zuhauses dar: im Sommer durch den angeschlossenen großzügigen Balkon und im Winter durch den gemütlichen Kaminofen. Der Blick in den gemütlichen Innenhof – von Wohnbereich und Balkon – schafft Ihnen drinnen wie draußen eine angenehme Privatsphäre.
Das Gäste-WC bietet einen Anschluss für Ihre Waschmaschine, das geräumige Tageslichtbad im Dachgeschoss ist zeitlos gestaltet. Das kleinere Schlafzimmer im Dachgeschoss verfügt über eine praktische Abstellkammer.
Das Vierfamilienhaus ist sehr gepflegt, ruhig und gleichzeitig [ . . . weitere Informationen erhalten Sie im Exposé, das sie gerne direkt über unsere Homepage unter http://www.berk-online.de anfordern können. ]
Im Alleinauftrag bei BERK Immobilien. Weitere Angebote unter http://www.berk-online.de
UNSER SERVICE:
Sie spielen mit dem Gedanken Ihre Immobilie zu verkaufen und möchten gerne wissen was Ihre Immobilie Wert ist? Unsere DEKRA zertifizierten Immobilienmakler ermitteln Ihnen kostenfrei den Wert Ihrer Immobilie und stehen Ihnen für ein informatives Beratungsgespräch zur Verfügung.
HAFTUNG:
Wir weisen ausdrücklich darauf hin, dass alle Angaben, insbesondere Angaben über Größen und Bemaßungen, vom Eigentümer stammen. Trotz unserer sorgfältigen Prüfung übernehmen wir keine Haftung für diese Angaben. Unsere Immobilienangebote sind freibleibend und vorbehaltlich Zwischenverkauf, Irrtümern und Fehlern. Bitte unterrichten Sie uns bei Interesse an diesem Objekt umgehend über etwaige Vorkenntnisse hinsichtlich des angefragten Immobilienangebots zusammen mit Ihrer Kontaktaufnahme.
GELDWÄSCHEGESETZ:
Nach dem Geldwäschegesetz (GwG) sind wir verpflichtet, die Identität unserer Kunden, bei Aufnahme einer Geschäftsbeziehung, festzustellen und zu überprüfen. Bei Privatpersonen geschieht dies durch Einsichtnahme in den Personalausweis sowie Erhebung der Angaben hinsichtlich Vor- und Nachname, Geburtsdatum und -ort, Staatsangehörigkeit sowie Wohnanschrift, z.B. per Kopie des Personalausweises. Bei Firmen durch Einsichtnahme in das Handelsregister sowie Erhebung der Daten hinsichtlich Firmenbezeichnung, Rechtsform, Registernummer, Anschrift und Sitz sowie Name des gesetzlichen Vertreters. Diese Unterlagen müssen wir 5 Jahre aufbewahren. Gemäß § 4 Abs. 6 GwG sind Sie als Kunde verpflichtet, die entsprechenden Auskünfte zu erteilen und Unterlagen vorzulegen.
DSGVO:
Alle Hinweise zur Verarbeitung Ihrer Daten finden Sie unter: https://www.berk-online.de/datenschutz/
Die charmante Maisonette-Wohnung befindet sich in zentraler Lage von Aschaffenburg-Obernau, einem ruhigen und familienfreundlichen Stadtteil. Alle wichtigen Einrichtungen des täglichen Bedarfs – darunter Supermarkt, Bäckerei, Apotheke, Poststelle sowie zwei Arztpraxen – sind bequem zu Fuß erreichbar. Auch Kindergarten und Grundschule befinden sich in direkter Nähe.
Dank der Nähe zur B469 sowie zur A3 Richtung Frankfurt und Würzburg ist Obernau verkehrstechnisch hervorragend angebunden. Auch die Aschaffenburger Innenstadt erreichen Sie in wenigen Fahrminuten.
Obernau selbst überzeugt durch seine naturnahe Umgebung und den charmanten dörflichen Charakter. Der nahegelegene Mainuferweg lädt zu Spaziergängen und Radtouren ein – perfekt für alle, die Ruhe, Natur und ein angenehmes Wohnumfeld schätzen.
Kindergarten 1,30 km | Grundschule 1,30 km | Realschule 5,40 km | Gymnasium 6,70 km | Autobahn 8,50 km | Zentrum 210 m
Sie sehen gerade einen Platzhalterinhalt von Google Maps. Um auf den eigentlichen Inhalt zuzugreifen, klicken Sie auf die Schaltfläche "Inhalt entsperren". Bitte beachten Sie, dass dabei Daten an Drittanbieter weitergegeben werden.
Mehr Informationen63743 Aschaffenburg, Deutschland (auf Google Maps ansehen)
Das Barrierefreiheits-Widget ist auf Grund Ihrer Cookie Einstellungen deaktiviert. Um das Barrierefreiheits-Widget einmalig zu aktivieren, klicken Sie bitte auf die Schaltfläche "Inhalt entsperren". Wollen Sie das Barrierefreiheits-Widget dauerhaft aktivieren, klicken Sie bitte auf die Schaltfläche "Erforderlichen Service akzeptieren und Inhalte entsperren". Bitte beachten Sie, dass dabei Daten an Drittanbieter weitergegeben werden.
Mehr InformationenSie müssen den Inhalt von reCAPTCHA laden, um das Formular abzuschicken. Bitte beachten Sie, dass dabei Daten mit Drittanbietern ausgetauscht werden.
Mehr InformationenSie müssen den Inhalt von Turnstile laden, um das Formular abzuschicken. Bitte beachten Sie, dass dabei Daten mit Drittanbietern ausgetauscht werden.
Mehr InformationenSie sehen gerade einen Platzhalterinhalt von Vimeo. Um auf den eigentlichen Inhalt zuzugreifen, klicken Sie auf die Schaltfläche unten. Bitte beachten Sie, dass dabei Daten an Drittanbieter weitergegeben werden.
Mehr InformationenSie sehen gerade einen Platzhalterinhalt von YouTube. Um auf den eigentlichen Inhalt zuzugreifen, klicken Sie auf die Schaltfläche unten. Bitte beachten Sie, dass dabei Daten an Drittanbieter weitergegeben werden.
Mehr InformationenSie müssen den Inhalt von reCAPTCHA laden, um das Formular abzuschicken. Bitte beachten Sie, dass dabei Daten mit Drittanbietern ausgetauscht werden.
Mehr InformationenSie sehen gerade einen Platzhalterinhalt von Google Maps. Um auf den eigentlichen Inhalt zuzugreifen, klicken Sie auf die Schaltfläche "Inhalt entsperren". Bitte beachten Sie, dass dabei Daten an Drittanbieter weitergegeben werden.
Mehr InformationenSie müssen den Inhalt von hCaptcha laden, um das Formular abzuschicken. Bitte beachten Sie, dass dabei Daten mit Drittanbietern ausgetauscht werden.
Mehr InformationenSie müssen den Inhalt von reCAPTCHA laden, um das Formular abzuschicken. Bitte beachten Sie, dass dabei Daten mit Drittanbietern ausgetauscht werden.
Mehr InformationenSie sehen gerade einen Platzhalterinhalt von Turnstile. Um auf den eigentlichen Inhalt zuzugreifen, klicken Sie auf die Schaltfläche unten. Bitte beachten Sie, dass dabei Daten an Drittanbieter weitergegeben werden.
Mehr Informationen